Menu
Městys Plaňany
PlaňanyOficiální internetové stránky
800 let městyse Plaňany
1222              2022
nahoru

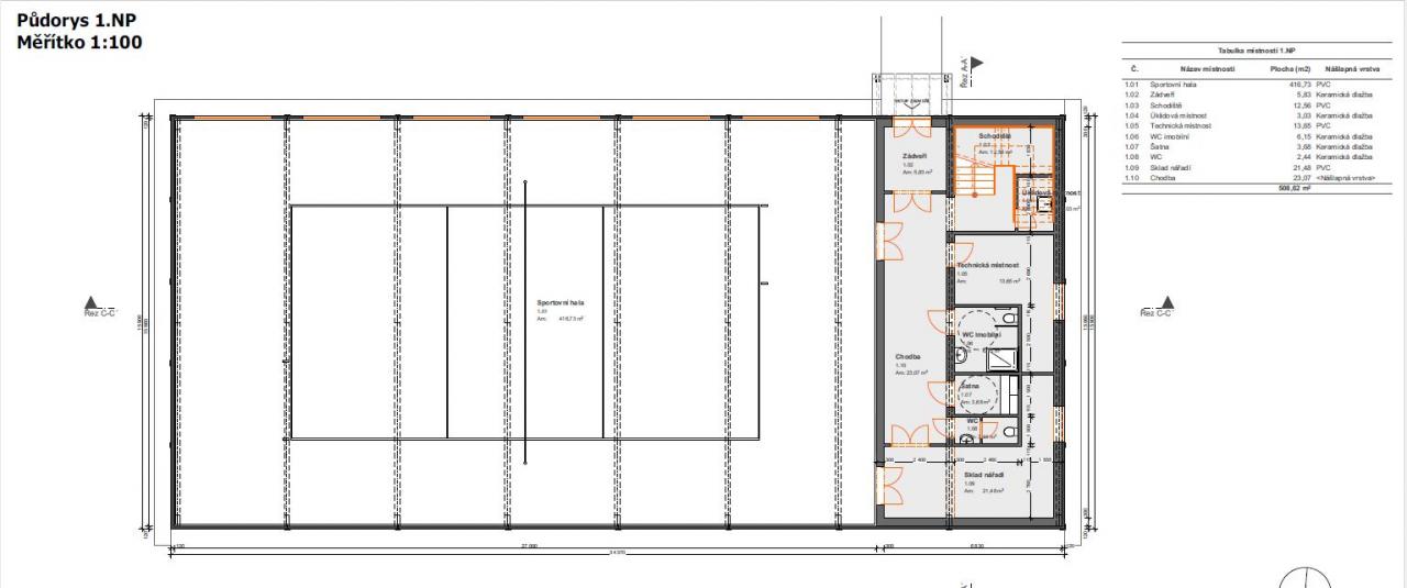
Přístavba k tělocvičně na p.č.st.77/1 a p.č.832 v k.ú. Plaňany

Přístavba k tělocvičně na p.č.st.77/1 a p.č.832 v k.ú. Plaňany

publicita

Projekt: Přístavba k tělocvičně na p.č.st.77/1 a p.č.832 v k.ú. Plaňany

Finanční zdroje: Projekt bude realizován ze státního rozpočtu - kapitola Všeobecná pokladní správa v souladu s programem 298 22 - Akce financované z rozhodnutí PS Parlementu a vlády ČR a na základě výzvy VPS-228-2-2020 Podpora rozvoje a obnovy MTZ regionálního školství v působnosti obcí. 

Na základě nepříznivých skutečností na stavbě jsme se rozhodli změnit celou technologii výstavby. Bude připravena nová projektová dokumentace. Stavba bude řešena formou montované haly na původním půdorysu záměru.  Stávající zbytek budovy tělocvičny bude demolován.  Městys ukončil  smluvní vztah se současným dodavatel stavby. Po zpracování projektové dokumentace bude vybrán nový dodavatel.

Zpracovatel projektové dokumentace:  ARTENDR s.r.o.

Administrátor projektové žádosti: ARTENDR s.r.o.


Změna stavebního záměru: 

Původní záměr přístavba ke staré části tělocvičny byl změněn a místo přístavby byla postavena zcela nová sportovní hala. 

Realizace: 08/2021 - 08/2022

Celkové náklady: 30 129 000,- Kč včetně DPH

Dotace: 13 555 769,- Kč

Vlastní:  16 573 231,- Kč

Dodavatel: Tost s.r.o.

Zpracovatel projektové žádosti: ARTENDR s.r.o.

Projektová dokumentace: ARTENDR s.r.o.


Realizace: 08/2020 - 08/2021

Celkové náklady: 14 023 900,- Kč - jen stavba - další náklady na přeložky sítí, TDS, PD, atd.

Dotace: 13 555 769,- Kč

Vlastní:  468 131,- Kč

Dodavatel: KWEKU s.r.o. - byla ukončena smlouva o dílo 

Zpracovatel projektové žádosti: ARTENDR s.r.o.

Projektová dokumentace: PROJEKCE STRÁNSKÝ


 

Datum vložení: 3. 1. 2019 16:03
Datum poslední aktualizace: 26. 9. 2022 15:38
Autor: Mgr. Martin Charvát

Informace, které by
Vás mohly zajímat

Veřejné zakázky

Portál pro vhodné uveřejnění
NEN

Mapový portál


gis

Svoz odpadu

Březen2026
Po Út St Čt So Ne
23 24 25 26 27 28 1
2 3 4
5
6 7 8
9 10 11 12
13 14 15
16 17 18
19
20 21 22
23 24 25 26 27 28 29
30 31 1
2
3 4 5
Kalendář svozu odpadu

Odstávky elektřiny

ČEZ Distribuce – Plánované odstávky

Mobilní aplikace

Sledujte informace z našeho webu v mobilní aplikaci – V OBRAZE.

Aktuální počasí

dnes, pátek 6. 3. 2026
jasno 14 °C 4 °C
jasno, slabý východní vítr
vítrV, 3.92m/s
tlak1026hPa
vlhkost48%

Přihlášení k odběru zpráv

Dostávejte informace z našeho webu prostřednictvím SMS a e-mailů

Dotace a projekty

Mobilní aplikace

Sledujte informace z našeho webu

Plaňany

Naše místní části Městys Plaňany